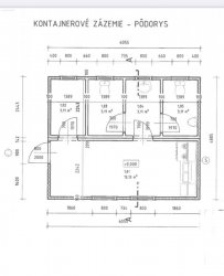
Mesto začalo s ďalšou investíciou do športovej infraštruktúry. Hlavným cieľom projektu je deti a mládež zapojiť do športovej činnosti a z roka na rok vytvoriť lepšie podmienky. Na začiatku augusta sa začala realizácia kontajnerového zázemia, ktoré bude slúžiť pre potreby Krupinského tenisového klubu. Mesto Krupina zabezpečilo vypracovanie projektovej dokumentácie na vybudovanie kontajnerového sociálneho zázemia pre tenisový klub, vrátane jeho napojenia na verejný vodovod a verejnú kanalizáciu. Zdrojom elektrickej energie bude fotovoltaický solárny systém. Na vybudovanie uvedeného diela sa mesto Krupina v minulosti uchádzalo o získanie dotačných finančných prostriedkov, avšak neúspešne. Na základe tejto skutočnosti je potrebné celú zákazku financovať z vlastných finančných prostriedkov. Na výber zhotoviteľa predmetnej zákazky bolo v zmysle § 117 zákona o verejnom obstarávaní uskutočnené verejné obstarávanie v zmysle ktorého je úspešným uchádzačom Ľubomír Dado, Osloboditeľov 931/17, 963 01 Krupina, ktorý predložil najnižšiu cenovú ponuku za zhotovenie kompletného diela. Modulárne zázemie pre športy všetkého druhu vyriešili už v stovkách miest športovcom problémy s obstaraním zázemia. Štandardizované riešenie šatní so sociálkami, spoločných priestorov umožní vo veľmi krátkom čase umiestniť modulárne objekty k rôznym športoviskám.










